Den Haag
Van Neckstraat 127
€700,000
Benedenwoning
4 rooms
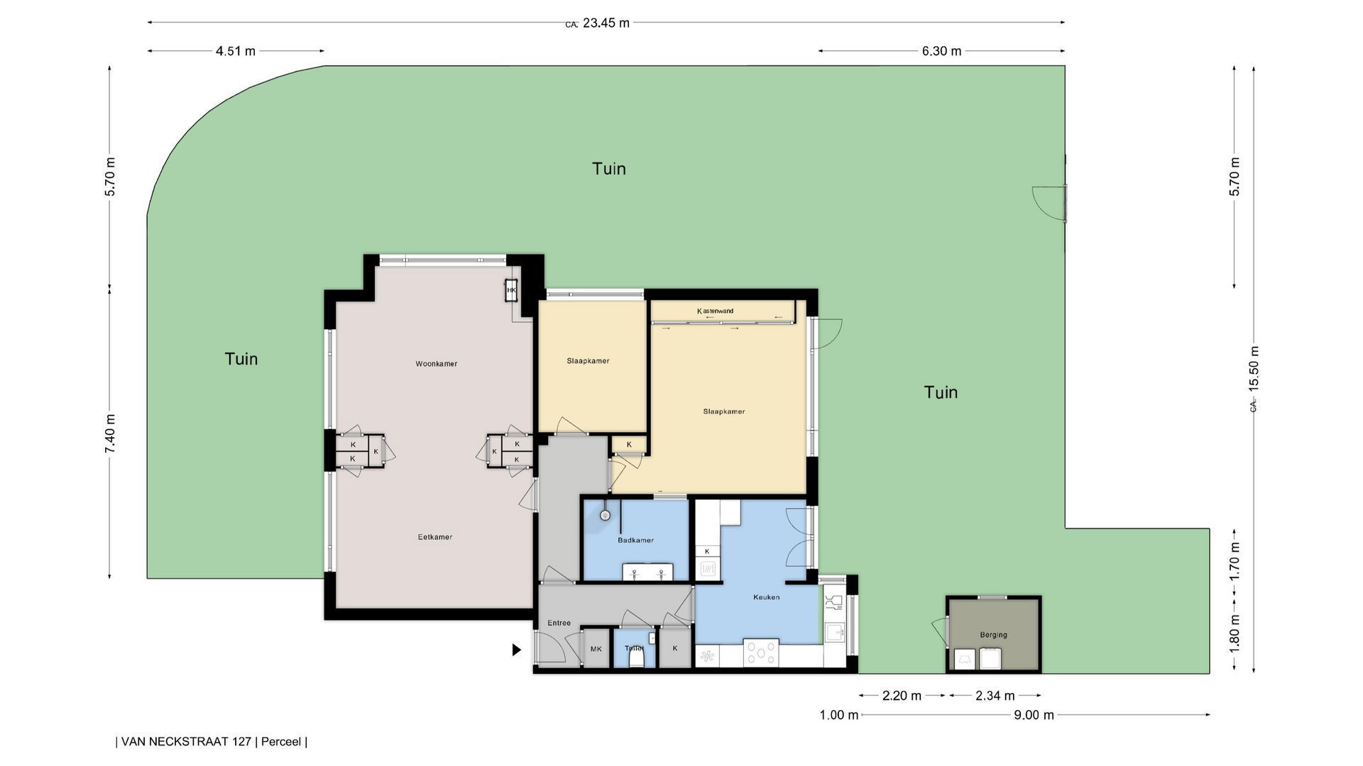
111 m²
Description
Wonen met de luxe van een tuin in het hart van Benoordenhout! Op zoek naar een sfeervolle parterrewoning met verrassend veel buitenruimte? Dan is Van Neckstraat 127 precies wat je zoekt! Deze goed ingedeelde 4-kamerwoning op de begane grond combineert comfortabel wonen met een royale tuin van ca. 155 m², een zeldzame vondst midden in het geliefde Benoordenhout.
Of je nu een tuinliefhebber bent, graag buiten eet met vrienden of gewoon houdt van rust en ruimte om je heen – hier vind je het allemaal. Met twee ruime slaapkamers, een fijne keuken en een lichte woonkamer is dit een plek waar...
Features
Acceptance
- Status
- Available
- Price
- €700,000
- Acceptance
- In consultation
- Address
- Van Neckstraat 127
- Postal Code
- 2597 SE
Build
- Main Type
- Benedenwoning
- Building Type
- Existing
- Interior Maintenance
- Good
- Exterior Maintenance
- Good
Energy
- Energy Label
- D
- Insulation
- Dubbel glas
- Heating
- Cv ketel
- Water
- Cv ketel
- Furnace Brand
- Nefit (Owned)
- Furnace Year of Construction
- 2015
Layout
- Rooms
- 4 rooms
- Bedrooms
- 2 bedrooms
- Bathrooms
- 1 bathroom
- Floors
- 1 floor
- Facilities
- Mechanische ventilatie, Tv kabel
Surfaces and volume
- Living Area
- 111 m²
- Volume
- 392 m³
Outside
- Garden Types
- Achtertuin, Voortuin, Zijtuin
- Main Garden Type
- Achtertuin
- Main Garden Area
- 102 m² (1.515 cm x 675 cm)
- Main Garden Orientation
- Zuidoost
Storage
- Shed Types
- Vrijstaand steen
- Number of Sheds
- 1
Parking
- Parking Types
- Openbaar parkeren, Betaald parkeren, Parkeervergunningen
Intressted in Van Neckstraat 127?
Then quickly make an appointment for a no-obligation viewing
