Den Haag
De Bruynestraat 54
€ 615.000 k.k.
Benedenwoning
4 kamers
116 m²
Omschrijving
In een charmante en rustige straat in het gewilde Benoordenhout ligt deze parterrewoning met een prachtige, zonnige tuin op het zuidwesten. De woning heeft een tussenbouw aan de achterzijde en een ruim tuinhuis – ideaal als werkruimte, hobbyruimte of extra berging.
De locatie is bijzonder gunstig: omgeven door groen, met het idyllische Park Clingendael en Landgoed Oosterbeek op loopafstand. Ook is er een klein buurtparkje om de hoek. Diverse (internationale) scholen, winkels, openbaar vervoer en uitvalswegen zijn uitstekend bereikbaar. Op fietsafstand van het strand en de duinen.
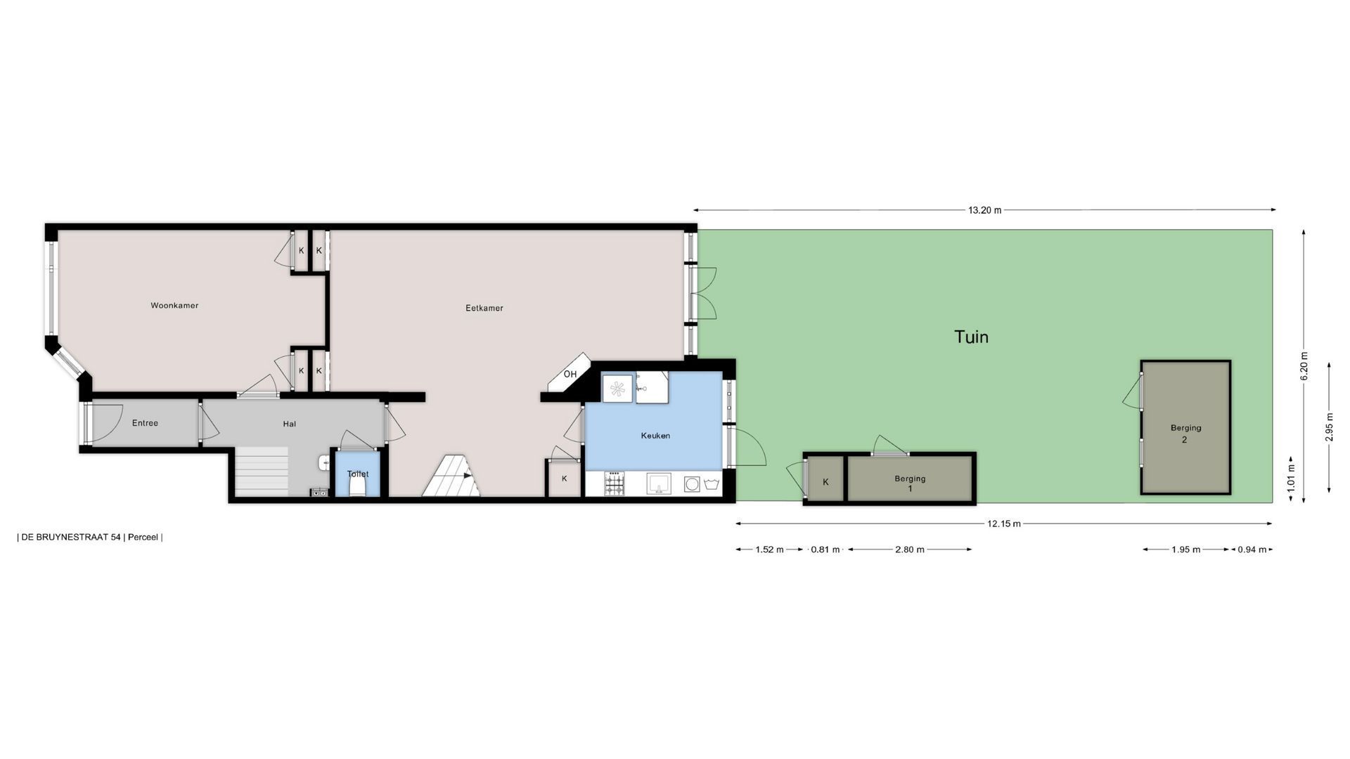
Indeling (zie plattegronden voor maatvoering):
Begane grond:
- Entree, hal, toilet
- Slaapkamer aan de voorzijde
- Ruime en...
Kenmerken
Aanvaarding
- Status
- Beschikbaar
- Vraagprijs
- € 615.000 k.k.
- Aanvaarding
- In overleg
- Adres
- De Bruynestraat 54
- Postcode
- 2597 RH
Bouw
- Hoofdtype
- Benedenwoning
- Bouwtype
- Bestaand
- Onderhoud Binnen
- Redelijk goed
- Onderhoud Buiten
- Redelijk goed
Energie
- Energielabel
- C
- Isolatie
- Gedeeltelijk dubbel glas
- Verwarming
- Cv ketel
- Water
- Cv ketel
- Ketelmerk
- Intergas (Eigendom)
- Bouwjaar Ketel
- 2012
Indeling
- Kamers
- 4 kamers
- Slaapkamers
- 3 slaapkamers
- Badkamers
- 1 badkamer
- Verdiepingen
- 3 verdiepingen
- Voorzieningen
- Rookkanaal
Oppervlakte en inhoud
- Woonoppervlakte
- 116 m²
- Inhoud
- 441 m³
Buitenruimte
- Tuintypes
- Achtertuin
- Hoofdtuin Type
- Achtertuin
- Oppervlakte Hoofdtuin
- 82 m² (620 cm x 1.320 cm)
- Oriëntatie Hoofdtuin
- Zuidwest
Schuur
- Schuurtjessystemen
- Vrijstaand hout
- Voorzieningen in Schuur
- Voorzien van elektra, Voorzien van water
- Aantal Schuren
- 2
Parkeerplaats
- Parkeertypes
- Betaald parkeren, Parkeervergunningen
Geïnteresseerd in De Bruynestraat 54?
Maak dan snel een afspraak voor een vrijblijvende bezichtiging
