Den Haag
Duinslag 71
€ 750.000 k.k.
Eengezinswoning
5 kamers
167 m²
Omschrijving
DUINSLAG 71, 2554 BS DEN HAAG
Duurzaam, ruim en volledig naar eigen wens af te werken! Aan het rustige en groene Duinslag 71 in het geliefde Kijkduin bevindt zich deze royale en comfortabele eindwoning van maar liefst ca. 168 m² woonoppervlak, midden in de duinen en op steenworp afstand van het strand en badplaats Nieuw Kijkduin. De wijk heeft een eigentijdse uitstraling door particulier opdrachtgeverschap. Hier ervaart u dagelijks het ultieme buitengevoel, met het ruisen van de zee als achtergrondgeluid en directe toegang tot wandel- en fietspaden door het duinlandschap. Een unieke combinatie van natuur, rust en stedelijk comfort.
Omgeving:
Prachtig in de...
Kenmerken
Aanvaarding
- Status
- Beschikbaar
- Prijs
- € 750.000 k.k.
- Aanvaarding
- In overleg
- Adres
- Duinslag 71
- Postcode
- 2554 BS
Bouw
- Hoofdtype
- Eengezinswoning
- Bouwtype
- Bestaand
- Onderhoud Binnen
- Goed
- Onderhoud Buiten
- Uitstekend
Energie
- Energielabel
- A+++
- Isolatie
- Dakisolatie, Muurisolatie, Vloerisolatie, Kierdichting
- Verwarming
- Vloerverwarming geheel, Elektrische verwarming, Warmte terugwininstallatie
Indeling
- Kamers
- 5 kamers
- Slaapkamers
- 4 slaapkamers
- Badkamers
- 3 badkamers
- Verdiepingen
- 3 verdiepingen
- Voorzieningen
- Mechanische ventilatie, Zonnecollectoren, Glasvezel kabel
Oppervlakte en inhoud
- Woonoppervlakte
- 167 m²
- Perceeloppervlakte
- 120 m²
- Inhoud
- 636 m³
Buitenruimte
- Tuintypes
- Achtertuin, Voortuin
- Hoofdtuin Type
- Achtertuin
- Oppervlakte Hoofdtuin
- 28 m² (620 cm x 450 cm)
- Oriëntatie Hoofdtuin
- Zuidwest
Roofterrace
- Oppervlakte Dakterras
- ( x )
Parkeerplaats
- Parkeertypes
- Op eigen terrein
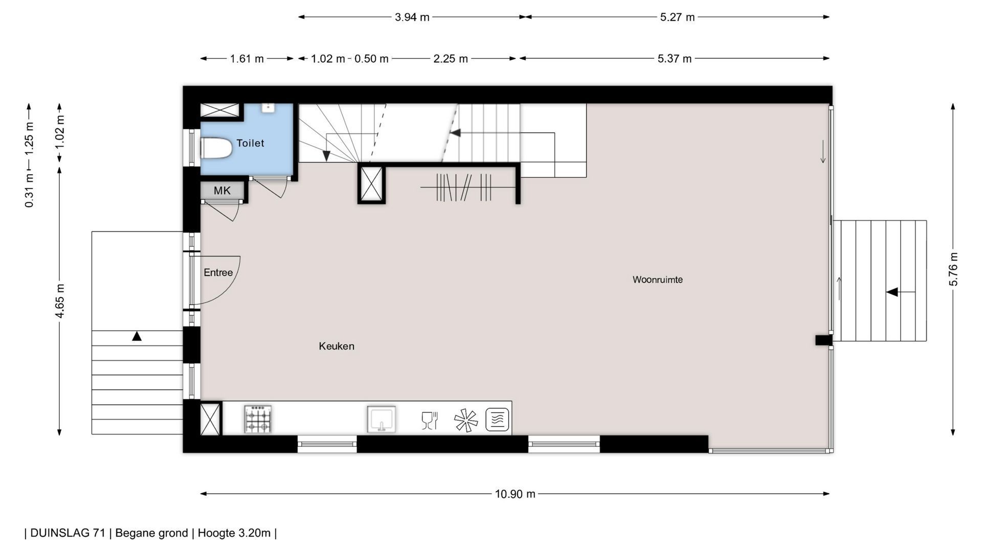
Plattegronden
Geïnteresseerd in Duinslag 71?
Maak dan snel een afspraak voor een vrijblijvende bezichtiging
