Den Haag
Frankenslag 320
€ 1.585.000 k.k.
Herenhuis
8 kamers
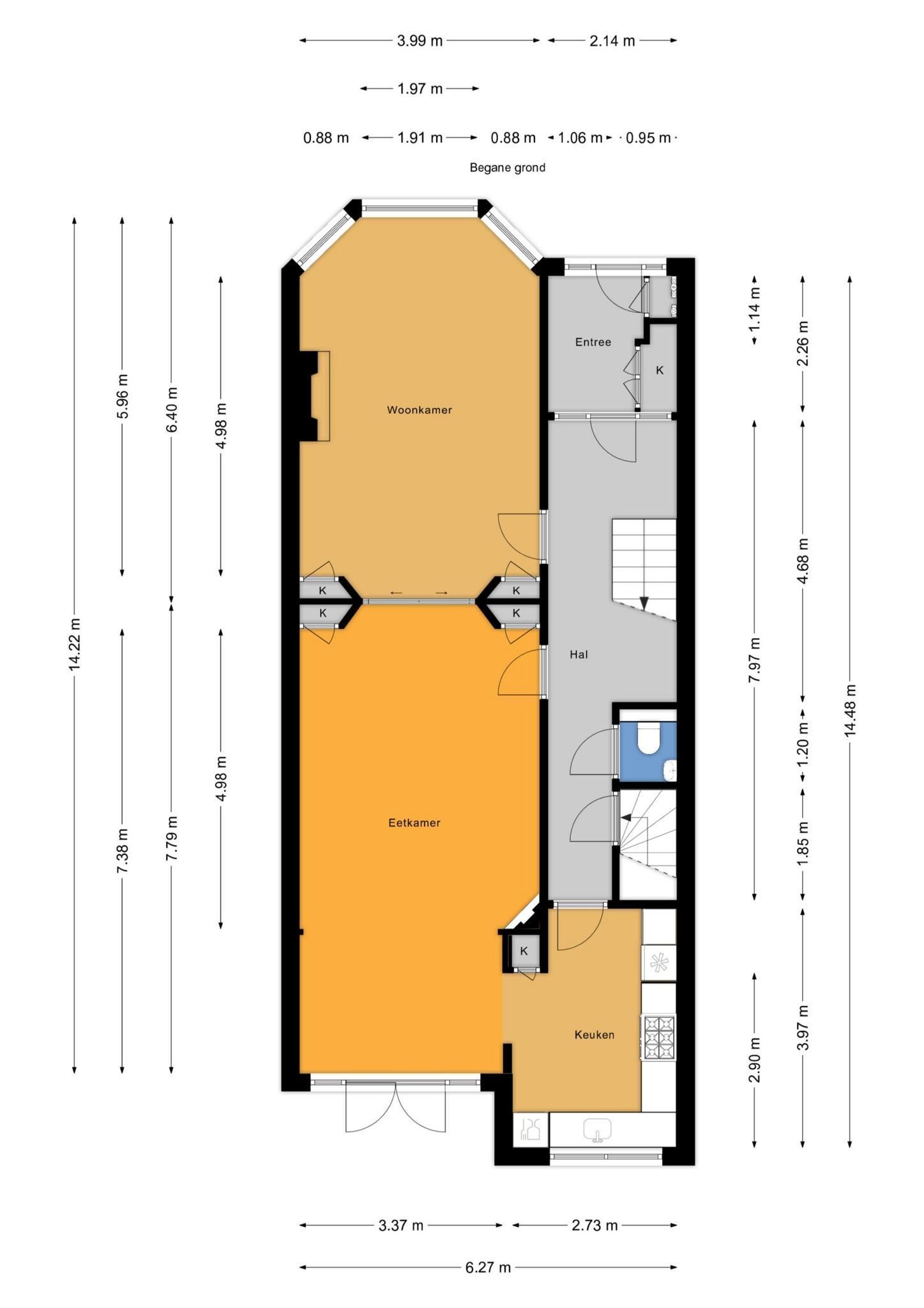
249 m²
Omschrijving
Schitterend 3 laags ruim klassiek herenhuis in goede staat van onderhoud in het mooie Statenkwartier gelegen. Prachtig op maat gemaakte keuken, hardhouten kozijnen met glas-in-lood, vele authentieke details, stijlvolle kamer en suite met rijke ornamenten en 2 open haarden, 2 badkamers, 6 slaapkamers en kelder, gezellige tuin en mooie visgraat eiken parketvloeren in alle kamers maken het wonen op de Frankenslag 320 tot een groot genot. Het huis heeft een ideale ligging op loopafstand van de restaurants en winkels op de Frederik Hendriklaan, de haven, het strand en goed openbaar vervoer. Ook gunstig nabij de Internationale Zone (o.a. Eurojust, Internationaal Strafhof) en...
Kenmerken
Aanvaarding
- Status
- Verkocht
- Prijs
- € 1.585.000 k.k.
- Aanvaarding
- In overleg
- Adres
- Frankenslag 320
- Postcode
- 2582 JA
Bouw
- Hoofdtype
- Herenhuis
- Bouwtype
- Bestaand
- Onderhoud Binnen
- Uitstekend goed
- Onderhoud Buiten
- Redelijk goed
Energie
- Energielabel
- C
- Isolatie
- Dakisolatie, Vloerisolatie, Dubbel glas
- Verwarming
- Cv ketel
- Water
- Cv ketel
- Ketelmerk
- Nefit Topline (Eigendom)
- Bouwjaar Ketel
- 2011
Indeling
- Kamers
- 8 kamers
- Slaapkamers
- 6 slaapkamers
- Badkamers
- 2 badkamers
- Verdiepingen
- 3 verdiepingen
- Voorzieningen
- Buitenzonwering, Rookkanaal
Oppervlakte en inhoud
- Woonoppervlakte
- 249 m²
- Perceeloppervlakte
- 163 m²
- Inhoud
- 1.029 m³
- Overige Oppervlakte
- 13 m²
Buitenruimte
- Tuintypes
- Achtertuin
- Hoofdtuin Type
- Achtertuin
- Oppervlakte Hoofdtuin
- 67 m² (652 cm x 1.033 cm)
- Oriëntatie Hoofdtuin
- Zuidoost
Schuur
- Schuurtjessystemen
- Vrijstaand hout
- Voorzieningen in Schuur
- Voorzien van elektra
- Aantal Schuren
- 1
Parkeerplaats
- Parkeertypes
- Betaald parkeren, Parkeervergunningen
Geïnteresseerd in Frankenslag 320?
Maak dan snel een afspraak voor een vrijblijvende bezichtiging
