Den Haag
Tapijtweg 9
€ 2.450.000 k.k.
Villa
9 kamers
296 m²
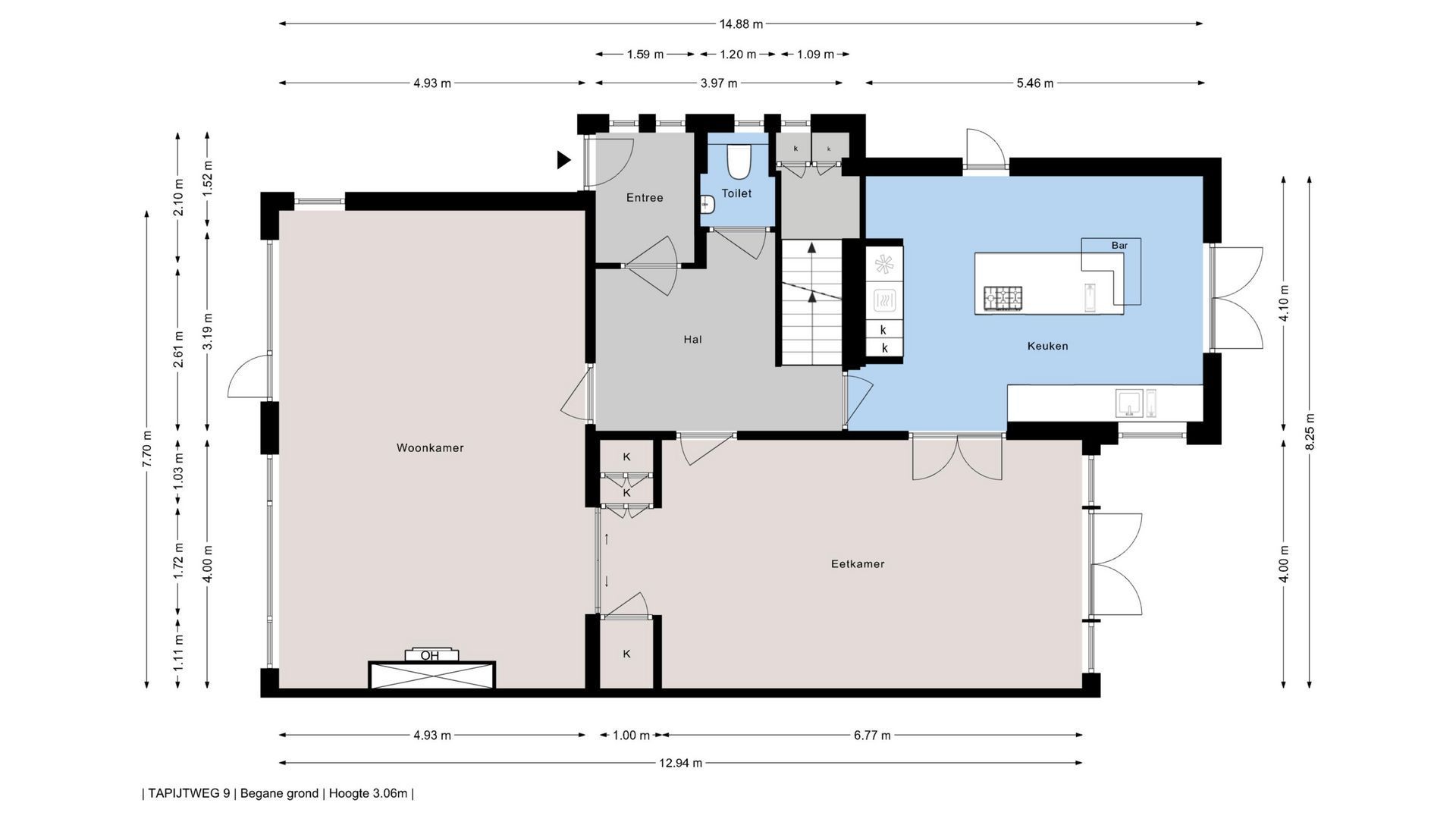
Omschrijving
Ruimte, licht en karakter – dit hoekhuis heeft het allemaal!
Ben je op zoek naar een huis met véél ruimte, volop lichtinval en een zonnige tuin? Dan is dit karakteristieke hoekhuis absoluut een bezichtiging waard! Met maar liefst 7 slaapkamers, 2 badkamers, een ruime woonkeuken, een kelder én een heerlijke duintuin aan de achterzijde en royale voortuin aan de voorzijde, biedt deze woning alles voor een groot gezin, thuiswerkers of liefhebbers van ruimte en comfort.
Het huis ligt op een geweldige locatie in het Klattepark: een bijzondere villawijk vlakbij het strand en de duinen. Heel rustig en toch ben je zo bij...
Kenmerken
Aanvaarding
- Status
- Verkocht
- Vraagprijs
- € 2.450.000 k.k.
- Aanvaarding
- In overleg
- Adres
- Tapijtweg 9
- Postcode
- 2597 KG
Bouw
- Hoofdtype
- Villa
- Bouwtype
- Bestaand
- Onderhoud Binnen
- Goed
- Onderhoud Buiten
- Goed
Energie
- Energielabel
- E
- Isolatie
- Dakisolatie, Dubbel glas
- Verwarming
- Cv ketel
- Water
- Gasboiler eigendom
- Ketelmerk
- Remeha Calenta ACE 40L CCS (Eigendom)
- Bouwjaar Ketel
- 2022
Indeling
- Kamers
- 9 kamers
- Slaapkamers
- 7 slaapkamers
- Badkamers
- 2 badkamers
- Verdiepingen
- 4 verdiepingen
Oppervlakte en inhoud
- Woonoppervlakte
- 296 m²
- Perceeloppervlakte
- 693 m²
- Inhoud
- 1.250 m³
- Overige Oppervlakte
- 31 m²
Buitenruimte
- Tuintypes
- Achtertuin, Voortuin, Zijtuin
Parkeerplaats
- Parkeertypes
- Op eigen terrein
Garage
- Garagetypes
- Vrijstaand steen
- Aantal Garages
- 1
Geïnteresseerd in Tapijtweg 9?
Maak dan snel een afspraak voor een vrijblijvende bezichtiging
