Den Haag
Van Nijenrodestraat 49
€ 1.095.000 k.k.
Herenhuis
7 kamers
172 m²
Omschrijving
Van Nijenrodestraat 49 – Den Haag
Royaal familiehuis met tuin, balkons én optionele garage
Wonen in alle rust, met ruimte in overvloed én de stad binnen handbereik? Welkom aan de Van Nijenrodestraat 49: een heerlijk ruim en licht familiehuis verdeeld over meerdere woonlagen, met zonnige tuinen, meerdere balkons en maar liefst vijf (slaap)kamers. Een ideale combinatie van comfortabel wonen en stedelijke luxe. Tegenover goede scholen en fijne speeltuinen !
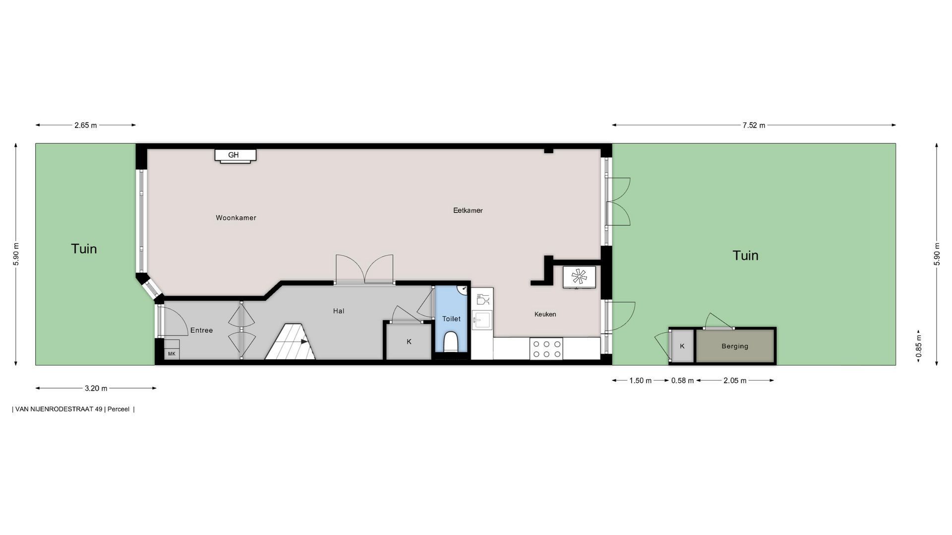
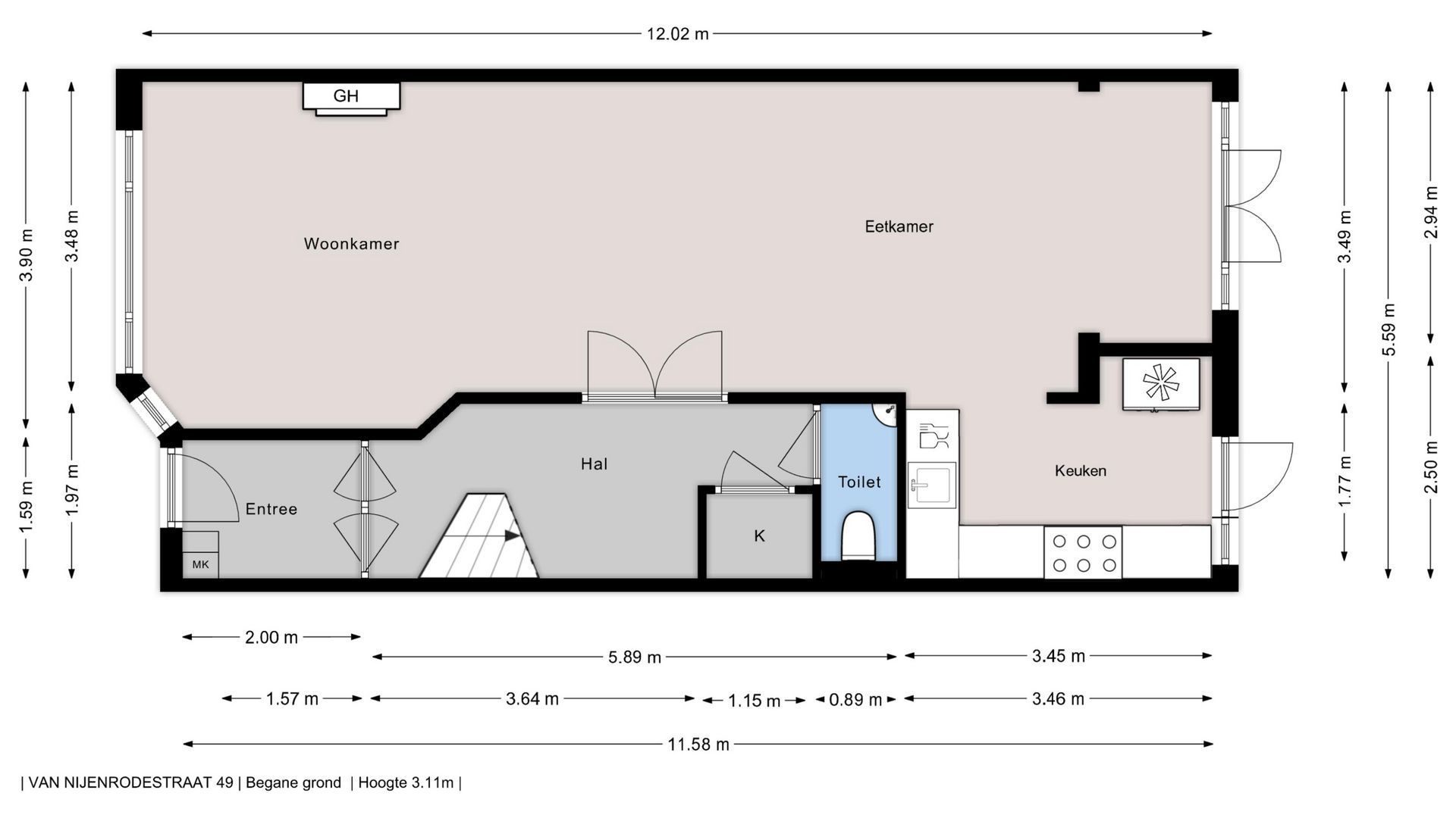
Begane grond
Via de entree kom je in de hal met toilet en trapopgang. De royale woon- en eetkamer vormen samen een fijne, lichte leefruimte met een prettige indeling en zicht op de tuin. De...
Kenmerken
Aanvaarding
- Status
- Verkocht onder voorbehoud
- Vraagprijs
- € 1.095.000 k.k.
- Aanvaarding
- In overleg
- Adres
- Van Nijenrodestraat 49
- Postcode
- 2597 RK
Bouw
- Hoofdtype
- Herenhuis
- Bouwtype
- Bestaand
- Onderhoud Binnen
- Goed
- Onderhoud Buiten
- Goed
Energie
- Energielabel
- C
- Isolatie
- Dubbel glas
- Verwarming
- Cv ketel
- Water
- Cv ketel
- Ketelmerk
- Remeha Avanta 35C (Eigendom)
- Bouwjaar Ketel
- 2014
Indeling
- Kamers
- 7 kamers
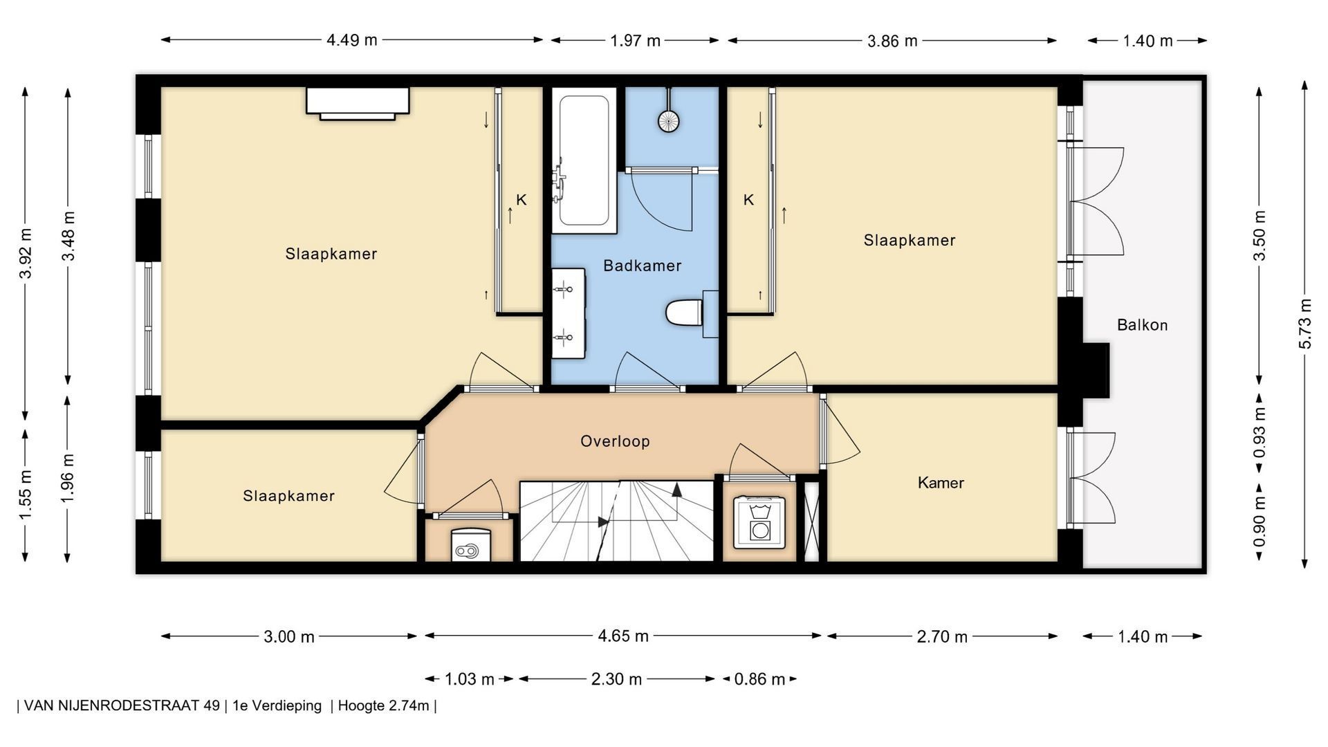
- Slaapkamers
- 5 slaapkamers
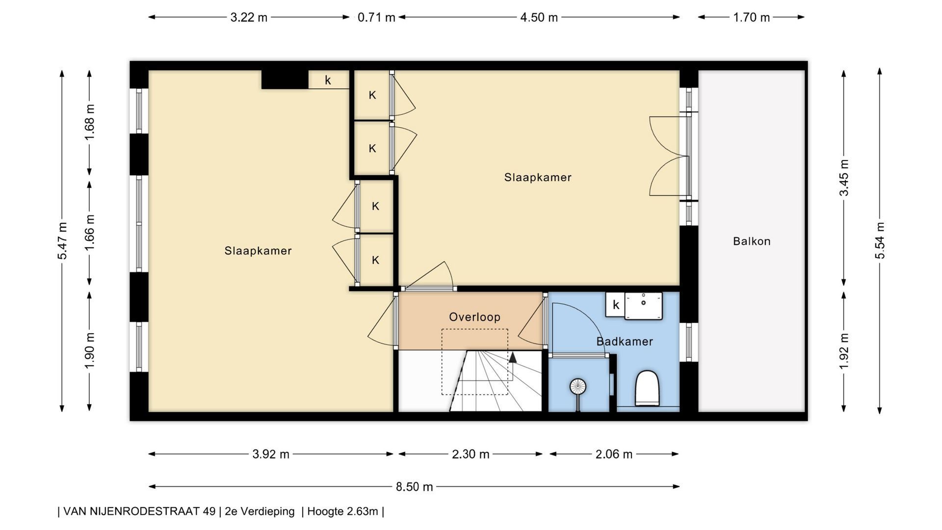
- Verdiepingen
- 3 verdiepingen
- Voorzieningen
- Tv kabel
Oppervlakte en inhoud
- Woonoppervlakte
- 172 m²
- Perceeloppervlakte
- 134 m²
- Inhoud
- 639 m³
Buitenruimte
- Tuintypes
- Achtertuin, Voortuin
- Hoofdtuin Type
- Achtertuin
- Oppervlakte Hoofdtuin
- 44 m² (590 cm x 752 cm)
- Oriëntatie Hoofdtuin
- Zuidoost
Schuur
- Schuurtjessystemen
- Vrijstaand steen
- Aantal Schuren
- 1
Garage
- Garagetypes
- Garage mogelijk
Geïnteresseerd in Van Nijenrodestraat 49?
Maak dan snel een afspraak voor een vrijblijvende bezichtiging
