Den Haag
Weissenbruchstraat 306
€ 697.000 k.k.
Bovenwoning
5 kamers
124 m²
Omschrijving
Ruim en licht dubbelbovenhuis met 4 slaapkamers in het gewilde Benoordenhout
Aan de rustige Weisenbruchstraat 306 bieden wij dit goed onderhouden dubbelbovenhuis van ca. 124 m² aan. Gelegen in een sfeervolle straat, op loopafstand van diverse winkels, speciaalzaken en gezellige horecagelegenheden, is dit een ideale woning voor wie op zoek is naar ruimte, comfort en een fijne ligging in Den Haag.
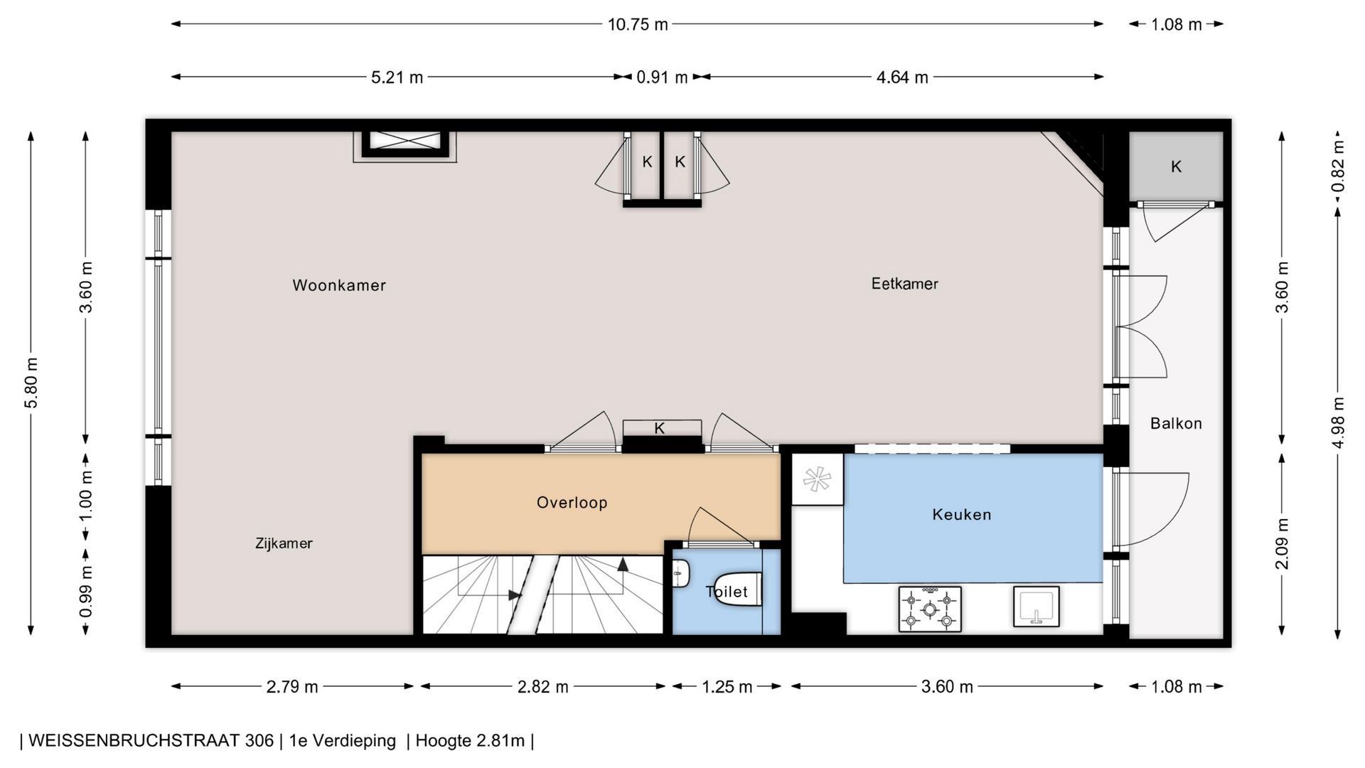
De woning beschikt over een royale woonverdieping met open keuken, veel lichtinval en fraaie parketvloeren en tevens een fijne (werkende) openhaard. In de deze woning zijn veel originele details bespaard gebleven. Met maar liefst vier slaapkamers en twee toiletten is dit...
Kenmerken
Aanvaarding
- Status
- Beschikbaar
- Prijs
- € 697.000 k.k.
- Aanvaarding
- In overleg
- Adres
- Weissenbruchstraat 306
- Postcode
- 2596 GP
Bouw
- Hoofdtype
- Bovenwoning
- Bouwtype
- Bestaand
- Onderhoud Binnen
- Goed
- Onderhoud Buiten
- Goed
Energie
- Energielabel
- D
- Isolatie
- Dubbel glas, Gedeeltelijk dubbel glas
- Verwarming
- Cv ketel
- Ketelmerk
- Intergas ()
- Bouwjaar Ketel
- 2005
Indeling
- Kamers
- 5 kamers
- Slaapkamers
- 4 slaapkamers
- Verdiepingen
- 2 verdiepingen
- Voorzieningen
- Tv kabel
Oppervlakte en inhoud
- Woonoppervlakte
- 124 m²
- Inhoud
- 422 m³
- Overige Oppervlakte
- 1 m²
Geïnteresseerd in Weissenbruchstraat 306?
Maak dan snel een afspraak voor een vrijblijvende bezichtiging
